

聯系電話:13145204777
本公司簡介
徐州鑫泰鍍鋅設備有限公司是一家專業從事熱鍍鋅技術服務輸出的專業性公司,包括從協助廠家完成可研、規劃、能評、環評。提供工廠設計、工藝設計、設備設計制造、安裝調試、生產指導到原輔材料提供、專業技術人員培訓一條龍服務。服務項目主要有四大板塊:一是熱鍍鋅線整體設計、建造和施工,包括配套環保設施:煙塵/酸霧回收利用,廢酸/溶劑再生處理系統,廢水循環處理系統,吊掛器具;二是熱鍍鋅線設備提供,如工業陶瓷堝、各種能源鍍鋅加熱爐、各種環保設施裝備;三是熱鍍鋅線各原輔材料及輔助設施提供,如熱鍍鋅合金、防爆劑、鋅液凈化劑、助鍍劑添加劑、阻鍍劑、酸液緩蝕抑霧劑、鋅鍋保護涂料、震動器、離心機、抽鋅泵、撈渣機、熱電偶保護套管、吊掛器具專用線材;四是熱鍍鋅各類專業技術人員培訓。
項目簡介
凱盛重工有限公司,隸屬于中國建材集團,是原國家大型煤礦機械制造骨干企業淮南煤礦機械廠通過重組改制按照現代企業制度設立的有限公司。
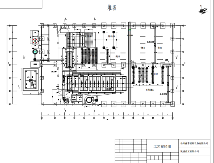
該產線鋅鍋尺寸8.2*1.6*2.5米,主要鍍鋅產品是光伏支架,產量約3萬噸/年。生產線在現有廠房內建設,線型為鍍鋅端進端出環形布局,實現閉環式生產,空間利用率高,物流通暢,便于集中控制管理。設備可實現全程數據實時監控,故障診斷、報警。環保設備采用無二次污染、資源可回收再利用的靜電捕集技術封閉收集鋅煙、酸霧,該環保新技術可實現超微排放,遠遠高于國家標準及實現資源化回用,且運行費用低。整個工藝系統實現了綠色環保、信息化、智能化,投入產出經濟性價比高。

工程工藝布局圖
凱盛重工項目重要時間軸: 2021年3月1日項目正式開工,2021年5月14日工程結束

2021年6月25日點火儀式圓滿結束
鑫泰員工歷經三個多月的努力奮戰,終于迎來了勝利的果實。今天是凱盛重工點火的日子,在此祝賀凱盛重工點火成功!

2021年7月15日正式試生產

于今日項目正式下線交接,項目完成